Cửa cuốn thép chống cháy EI30/EI60/EI90 là sản phẩm mới, rất đặc sắc của công ty Fire Dragon năm 2023. Cửa cuốn được sản xuất bởi tổng hợp các lớp nan cửa thép ngăn cháy kết hợp với bông gốm và vải chống cháy cho khả năng chống cháy và cách nhiệt xuất sắc trong điều kiện sự cố cháy nổ đồng thời có tính chất bảo vệ an toàn an ninh cao cho tài sản của công trình. Sản phẩm cầu tạo phù hợp những vị trí kích thước lớn để xe nâng qua lại, cửa hầm, ngăn khoang diện tích lớn tại trung tâm thương mai, Gara tầng hầm…
BẢN VẼ KĨ THUẬT CỬA CUỐN THÉP CHỐNG CHÁY EI

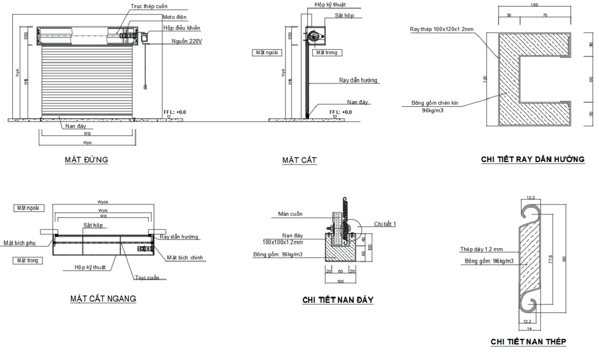
THÔNG SỐ KÍCH THƯỚC HỘP KỸ THUẬT BAO CHE CỬA CUỐN
FIRE STEEL SHUTTER TECHNICAL COVER BOX SPECIFICATION

*Vui lòng liên hệ với hãng để có thêm thông tin bản vẽ thiết kế và kiểm định sản phẩm
Cùng với khả năng cháy đã được thử nghiệm đạt cấp ngăn cháy EI90 phút, sản phẩm được Công ty Fire Dragon áp dụng lắp đặt cho nhiều công trình tại các vị trí yêu cầu chống cháy như:
- Tầng hầm Gara, bãi đậu xe.
- Ngăn khoang cháy các khu vực.
- Thay thế các cửa đi cỡ lớn dùng cho xe nâng hàng.
- Cửa kho, xuất hàng yêu cầu tính an toàn và hiệu năng sửa dụng bền bỉ.
- Các khu vực phòng điện kỹ thuật, phòng sơn… Có nguy cơ cháy nổ cao.
ỨNG DỤNG SẢN PHẨM CỬA CUỐN CHỐNG NỔ ĐẶC BIỆT
Sản phẩm được ứng dụng cho các khu vực ngăn cháy có công năng đặc biệt yêu cầu chống nổ và ngăn cháy lan ngoại trừ khi vực hầm mỏ.
CÁC MẪU CỬA CUỐN THÉP CHỐNG CHÁY EI

